Vedi tutto 36 fotografie
Overview
- Updated On:
- Aprile 8, 2026
- 2 Letti
- 2 Bagni
- 1 Garages
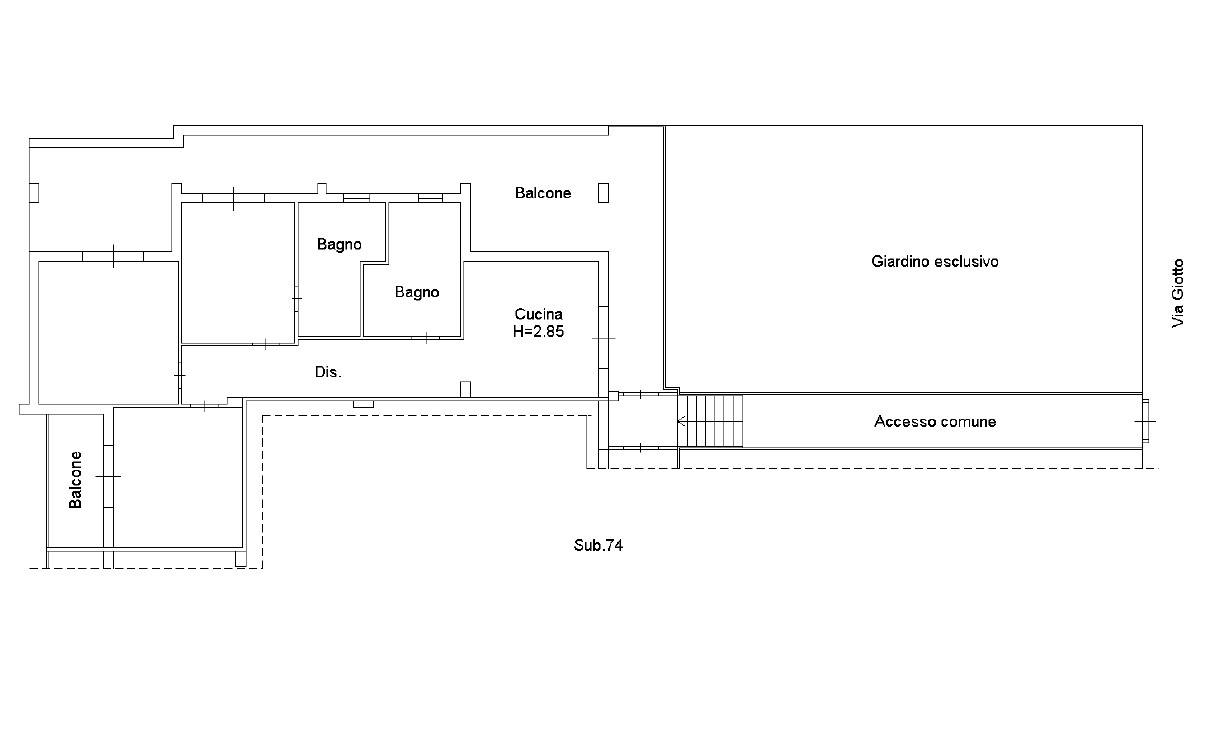
Proponiamo in vendita una graziosa soluzione con giardino in posizione centrale e strategica, comoda a tutti i principali servizi ,posto al piano rialzato composto da:
- salone, cucina abitabile, disimpegno, due camere (possibilita’ di ricavare la terza), due bagni.
La soluzione si presenta in buone condizioni, gli spazi interni risultano funzionali e facilmente personalizzabili in base alle proprie esigenze abitative, elemento distintivo della proprieta’ e’ il giardino di c.ca 120 mq ideale per momenti di relax, per famiglie con bambini o per chi possiede animali domestici, balconi di 64 mq, comodo box auto al piano seminterrato.
Documenti
ID proprietà: 32194
Prezzo: € 290.000
Dimensioni proprietà (mq): 110 m2
Camere: 4
Letti: 2
Bagni: 2
Garage: 1
Dimensione Garage: 20
Piano: Piano rialzato
Piani n.: 5
Dettagli esterni
Balcone
Giardino
Altre Caratteristiche
Ascensore
box
€ 974.91
al mese- Principal and Interest
- Property Tax
- HOO fees
€ 974.91




